home    
profile    
projects   institutional
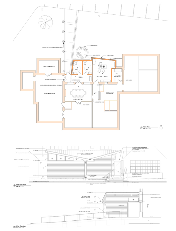
    marcham hall addition
process    
contact    
news    
     
     
     
     
     
     
     
     
      1        2
     

marcham hall addition
cayuga heights, ithaca, NY